Мы используем куки-файлы. Соглашение об использовании
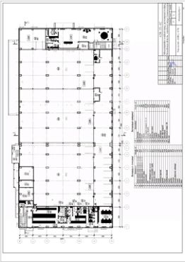
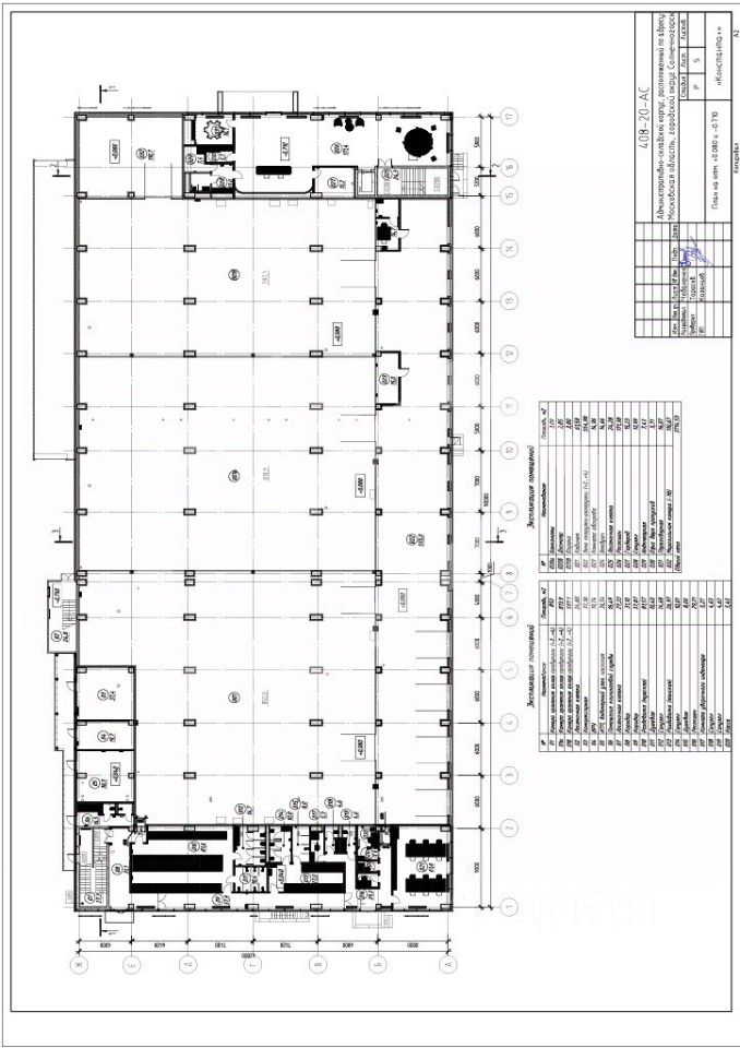
Площадь3 268 м²
Этаж1 из 1
Сетка колонн6 Х 12
Выс. потолков8.0 м.
ПомещениеСвободно
Отчёт о привлекательности объектаУзнайте, насколько помещение и район подходят для вашего бизнеса
Что входит в отчёт
  • Охват населения
  • Пешеходный трафик
  • Автомобильный трафик
  • Средний бюджет семьи по району
  • Арендные ставки рядом
  • Точки притяжения
  • Конкуренты в радиусе 1 км
  • Рекомендации по выбору места для бизнеса
1086008. Предлагается складское помещение общей площадью 3 268 кв.м. в логистическом комплексе класса "А" Ближние Горки. Преимущества: Удобное расположение, расстояние до МКАД - 43 км. Современное инженерное оборудование и системы противопожарной безопасности. Удобный подъезд к зоне погрузки/разгрузки. Современные системы безопасности. Система видеоконтроля. На складе круглосуточно поддерживается температурный режим в различных температурных интервалах 0+6 град., морозильная камера 100 кв.м. на -18 град. Организация рабочих мест для сотрудников компании-заказчика. Парковка для сотрудников. В шаговой доступности остановки общественного транспорта. Технические характеристики: Склад разделён на три независимые по температурному режиму (камеры - 875, 810 и 706 кв.м), отделёнными от отгрузочного пандуса перегородкой, скоростными воротами. Доковые ворота на отметке 1,2 м. Шаг колонн: 6 х 12 метров. Нагрузка на пол: 3 т/кв.м. Высота потолков: 8 метров.
lock

Войдите или зарегистрируйтесь
для просмотра информации

Просматривайте условия сделки и всю информацию об объекте
Сохраняйте фильтры в поиске и не вводите заново
Доступ к избранному с любого устройства
Неограниченное добавление в избранное
Позвоните автору
Вам ответят на все вопросы
Остались вопросы по объявлению?
Позвоните владельцу объявления и уточните необходимую информацию.
  • Инфраструктура
  • Похожие рядом
  • Тип зданияСклад
  • Категория зданияДействующее
  • Общая площадь3 268 м²
Порошковая система пожаротушения
Помощь надёжных риелторов
Риелтор партнёр Циан поможет купить или продать любую недвижимость
5 183 048 ₽/мес.

Прямая аренда (от года), минимальный срок аренды 11 месяцев

68 150 $/мес.
57 830 /мес.
Цена за метр
19 032 ₽ в год
Налог
НДС включен: 934 648 ₽
Комиссия
нет
Коммунальные платежи
не включены
Эксплуатационные расходы
не включены
Агентство недвижимости
Документы проверены