Мы используем куки-файлы. Соглашение об использовании
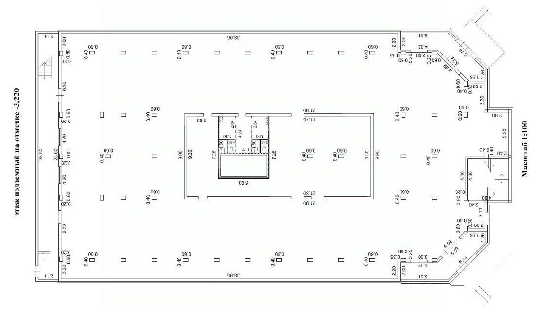
Помещение свободного назначения, 1 321,1 м²
Площадь1 321,1 м²
Этаж-1 из 25
ПомещениеСвободно
Отчёт о привлекательности объектаУзнайте, насколько помещение и район подходят для вашего бизнеса
Что входит в отчёт
  • Охват населения
  • Пешеходный трафик
  • Автомобильный трафик
  • Средний бюджет семьи по району
  • Арендные ставки рядом
  • Точки притяжения
  • Конкуренты в радиусе 1 км
  • Рекомендации по выбору места для бизнеса
636942. Предлагаем к приобретению торговое помещение, площадью 1 321.1 кв. м., расположенное на первом этаже жилого дома в ЖК "Первый Зеленоградский". Без комиссии для покупателя. Преимущества объекта: -комплекс состоит из 16 корпусов переменной этажности (от 17 до 25 этажей); -транспортная доступность от станции МЦД-3 "Зеленоград-Крюково" (15 минут на транспорте); -выезд на Пятницкое шоссе рядом с ЖК; -отлично просматривается, находится в легком доступе для потенциальных клиентов; -развитая инфраструктура в окружении; -гибкая планировка, позволяющая адаптировать пространство под различные нужды; -место для вывески; -зона разгрузки/погрузки; -3 мокрые точки; -рядом парковка и остановка общественного транспорта. Технические параметры объекта: -отдельный вход с улицы; -электрическая мощность: 200 кВт; -высота потолков: от 3.2 до 3.5 м. Свяжитесь с нами для получения дополнительной информации!
lock

Войдите или зарегистрируйтесь
для просмотра информации

Просматривайте условия сделки и всю информацию об объекте
Сохраняйте фильтры в поиске и не вводите заново
Доступ к избранному с любого устройства
Неограниченное добавление в избранное
Позвоните автору
Вам ответят на все вопросы
Остались вопросы по объявлению?
Позвоните владельцу объявления и уточните необходимую информацию.
  • Инфраструктура
  • Похожие рядом
  • Тип зданияЖилой комплекс
  • Общая площадь1 321,1 м²
Помощь надёжных риелторов
Риелтор партнёр Циан поможет купить или продать любую недвижимость
80 587 100 ₽
1 035 337 $
886 730
Цена за метр
61 000 ₽
Налог
НДС включен: 14 532 100 ₽
Агентство недвижимости
Документы проверены