Мы используем куки-файлы. Соглашение об использовании
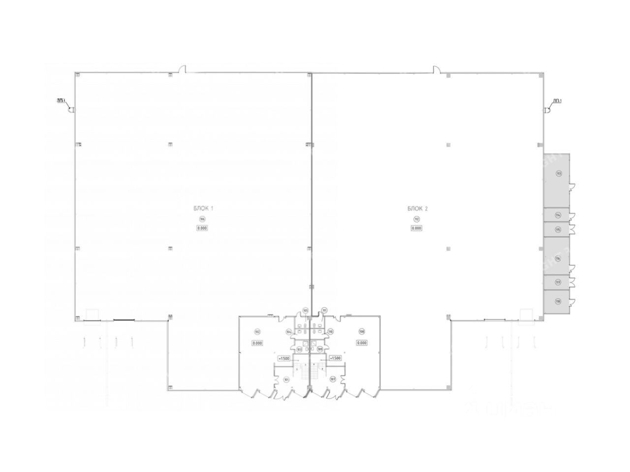
Площадь4 347,78 м²
Этаж1 из 1
Выс. потолков8.0 м.
Отчёт о привлекательности объектаУзнайте, насколько помещение и район подходят для вашего бизнеса
Что входит в отчёт
  • Охват населения
  • Пешеходный трафик
  • Автомобильный трафик
  • Средний бюджет семьи по району
  • Арендные ставки рядом
  • Точки притяжения
  • Конкуренты в радиусе 1 км
  • Рекомендации по выбору места для бизнеса
Складское помещение 4 347.8 кв. м в "ICPARK Есипово". Прямая продажа, без комиссии. Направление: Северо-Запад. Шоссе: Ленинградское. Округ: Московская область. Расстояние от МКАД: 32 км. Характеристики: - Класс: A; - Ворота: Доки; - Тип склада: Light Industrial; - Высота потолков: 8 м; - Нагрузка на пол: 4 т/ кв.м; - Система пожаротушения: Внешние гидранты и внутренние пожарные краны; - Тип пола: С антипылевым покрытием; - Уровень пола: 1.2 м. Стоимость: 760 725 037.9 руб. Финансовые условия: - Оплачивается отдельно: НДС; - Налог: Включая НДС. Оформление сделки напрямую от собственника, без комиссии. Готовы оперативно организовать просмотр в удобное время, предоставить PDF-презентацию и план. Точное местоположение объекта можно найти по данным координатам: 56.081709,37.104696 ID = c_1790772
lock

Войдите или зарегистрируйтесь
для просмотра информации

Просматривайте условия сделки и всю информацию об объекте
Сохраняйте фильтры в поиске и не вводите заново
Доступ к избранному с любого устройства
Неограниченное добавление в избранное
Позвоните автору
Вам ответят на все вопросы
Остались вопросы по объявлению?
Позвоните владельцу объявления и уточните необходимую информацию.
  • Инфраструктура
  • Похожие рядом
  • Год постройки2024
  • Тип зданияСкладской комплекс
  • Категория зданияДействующее
  • Общая площадь225 000 м²
Естественная вентиляция
Помощь надёжных риелторов
Риелтор партнёр Циан поможет купить или продать любую недвижимость
760 725 038 ₽
10 658 667 $
9 089 884
Цена за метр
174 969 ₽
Налог
НДС включен: 137 179 924 ₽
Агентство недвижимости
На Циан
12 лет
Объектов в работе
более 1000