Мы используем куки-файлы. Соглашение об использовании
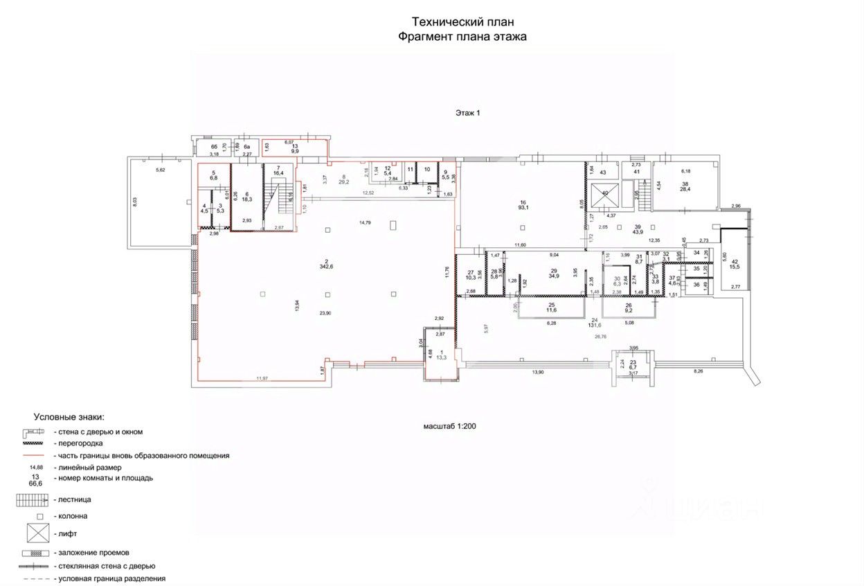
Помещение свободного назначения, 413 м²
Площадь413 м²
Этаж1 из 4
ПомещениеСвободно
Отчёт о привлекательности объектаУзнайте, насколько помещение и район подходят для вашего бизнеса
Что входит в отчёт
  • Охват населения
  • Пешеходный трафик
  • Автомобильный трафик
  • Средний бюджет семьи по району
  • Арендные ставки рядом
  • Точки притяжения
  • Конкуренты в радиусе 1 км
  • Рекомендации по выбору места для бизнеса
1157796. Предлагаем помещение свободного назначения с сетевым арендатором "Пятёрочка", площадью 413 кв. м, расположенное на первом этаже 4-этажного торгово-офисного центра. Без комиссии для покупателя. Преимущества объекта: -первая линия ул. Красная; -в центре г. Солнечногорск; -шаговая доступность от ж/д станции "Подсолнечная" (12 минут пешком); -удобная транспортная доступность: 2.6 км до Ленинградского шоссе, 4.2 км до Пятницкого шоссе; -плотный жилой массив; -развитая инфраструктура района; -высокий автомобильный и пешеходный трафик; -отлично просматривается, находится в легком доступе для потенциальных клиентов; -гибкая планировка, позволяющая адаптировать пространство под различные нужды; -витринное остекление; -возможность размещения вывески; -зона разгрузки/погрузки; -бесплатная парковка перед зданием на 70 машиномест; -рядом остановка общественного транспорта. Технические параметры объекта: -отдельный вход с улицы. -электрическая мощность: 82 кВт. -высота потолков: 4 м. Информация об арендаторе: -арендатор: Пятёрочка. -доход: 600 000 руб/мес. Свяжитесь с нами для получения дополнительной информации!
lock

Войдите или зарегистрируйтесь
для просмотра информации

Просматривайте условия сделки и всю информацию об объекте
Сохраняйте фильтры в поиске и не вводите заново
Доступ к избранному с любого устройства
Неограниченное добавление в избранное
Позвоните автору
Вам ответят на все вопросы
Остались вопросы по объявлению?
Позвоните владельцу объявления и уточните необходимую информацию.
  • Инфраструктура
  • Похожие рядом
Помощь надёжных риелторов
Риелтор партнёр Циан поможет купить или продать любую недвижимость
60 000 000 ₽
788 919 $
669 452
Цена за метр
145 279 ₽
Налог
УСН
Агентство недвижимости
Документы проверены