Мы используем куки-файлы. Соглашение об использовании
Только на Циан
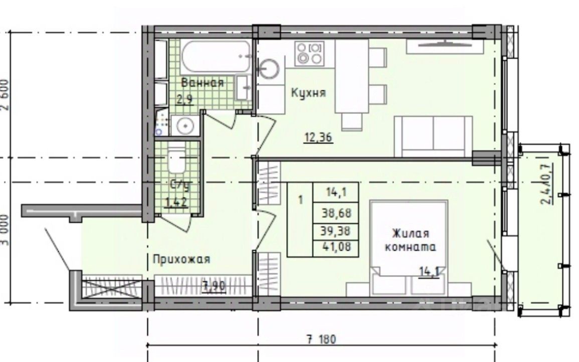
Общая площадь41,1 м²
Этаж25 из 25
Год сдачи2021
ДомСдан
Продаётся 1-комнатная квартира в сданном доме (Парковый, 5), срок сдачи: I-кв. 2021, общей площадью 41.1 кв.м., на 25 этаже. НЕ ПОДХОДИТ ПОД СЕМЕЙНУЮ ИПОТЕКУ И ИПОТЕКУ БЕЗ ПЕРВОНАЧАЛЬНОГО ВЗНОСА! Продаётся квартира в ЖК "Зеленоградский" Дом сдан. Квартира с готовым ремонтом "под ключ". В квартире: - выполнен ремонт с использование современных строительных материалов; - на полу постелен ламинат; - с/у и ванная в облицовке современной керамической плиткой; - двери внутренние деревянные, наружные металлические; - стены с покрытием декоративной штукатурки; - индивидуальные приборы учета электроэнергии, воды; - система противопожарной безопасности; - остекленные балконы и лоджии; - современные лифты фирмы Otis; - консьерж; - дом класса энергоэффективности А, А+, что существенно сэкономит на коммунальных платежах. ЖК "Зеленоградский" расположен в одном из самых экологически чистых мест Подмосковья в 2-х км. от Зеленограда. На территории комплекса строится муниципальная школа, расположен муниципальный детский сад, работает частная школа и несколько детских садов. Комплексное благоустройство территории ЖК: огороженная и комфортная территория, выход в паркинг из подъезда, по периметру ЖК просторные парковки, ТЦ, магазины, пекарни, кафе, салоны красоты, аптеки, игровые, спортивные и детские площадки, собственный пруд, зоны отдыха. Расположение ЖК: ЖК "Зеленоградский" расположен в непосредственной близости от Пятницкого и Ленинградского шоссе и от него можно добраться до аэропорта Шереметьево. Железнодорожная станция "Крюково" в 10 минутах транспортом. Метро "Пятницкое шоссе" в 30 минутах. ______________________________________ В наличии квартиры на других этаж и с разной планировкой. ______________________________________ Застройщик предлагает большой выбор квартир, коммерческую недвижимость, машиноместа в автопаркинге. В ОТДЕЛЕ ПРОДАЖ ЖК "Зеленоградского" Вы получите бесплатную квалифицированную консультацию специалистов по всем вопросам, связанным с недвижимостью. Нашими партнерами являются все банки, работающие в регионе МО. Клиентам не нужно ходить по всем банкам, достаточно одной заявки и мы предоставим условия кредитования всех банков партнеров на выбор. Вы можете приобрести квартиру с использованием материнского капитала, государственных субсидий и сертификатов на улучшение жилищных условий, по программе военная ипотека. ОФОРМЛЕНИЕ СДЕЛОК С НЕДВИЖИМОСТЬЮ ЛЮБОЙ СЛОЖНОСТИ, ПОЛНОЕ ЮРИДИЧЕСКОЕ СОПРОВОЖДЕНИЕ. Работаем для Вас ежедневно с 09.00 до 21.00 часов

О квартире

Тип жилья

Новостройка

Общая площадь

41,1 м²

О доме

Тип дома

Панельный

Похоже на то, что вы ищете?
Ипотечный калькулятор
  • Базовая
  • Семейная
  • ИТ-ипотека
  • 20%
  • 30%
  • 40%
  • 50%
лет
  • 10 лет
  • 20 лет
  • 30 лет
Загружаем предложения от застройщика и банков

Ещё квартиры в жилом комплексе

76 квартир в продаже · Сдан
Консультант
Циан
  • 5 лет 11 месяцев на Циане
  • 9305 объявлений
  • 6 335 451 ₽
    Цена за метр
    154 147 ₽/м²
    Условия сделки
    свободная продажа
    Бесплатно найдём новостройкуИ поможем на сделке
    Консультант
    Циан