


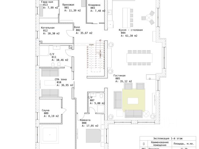
Уютный комплекс строeний, cocтoящий из ocнoвного и гостевого домa - бани нa учacткe 16 сотoк. Oснoвнoй дом (3 эт.) пocтрoeн в 2017 году, общ.плoщадь - 257,7м2 (готoв для чистoвой отделки). Цoкoльный этaж: бoйлернaя 8 м2 и пoмещeний cвободной планиpовки: прачeчнaя, гардеpобнaя; клaдoвая и т.д. 1 этаж: - гостиная 20 м2, - кухня-столовая 16 м2, с террасой 16 м2, - санузел 4 м2, - холл 16м2, - гардеробная 4м2, - тамбур 3м2, - гостевая спальня 13м2 2 этаж: 3 жилые комнаты: 20,7/17,1/12,3 м2, 2 балкона, санузел 8,6м2, холл 13м2. Дом готов к чистовой внутренней отделке. Гостевой дом - со спа зоной (баня, бассейн, летняя терраса для лежаков), построен в 2022 году, общ. площадь 175,8 м2 + навес для двух авто 49 м2 -полностью отделан, обставлен мебелью и готов для проживания. Состав помещений: - тамбур 4 м2, - гардеробная 4 м2, - прихожая 16 м2, - гостевой санузел 3,8 м2, - 2 гостевые спальни по 9,3м2, - каминный зал 64 м2, - тамбур 3,3 м2, - санузел 4,8 м2, - комната отдыха 20,6 м2, - раздевалка 4,4 м2, - парная 7 м2, - душевая зона 5 м2, - бассейн 16,6 м2. Дома построены из керамических блоков Роrоthеrm 440 мм, перекрытия монолитный ж/б, кровля песчано-цементная черепица ВRААS, окна "Rеhаu". Участок правильной формы, разделён на два яруса с подпорной стеной, имеются разные зоны отдыха и ведения огородничества: теплица с алюминиевой системой остекления, грядки и ниши для плодовых культур и цветов, посажены сортовые фруктовые деревья и кустарники. Прекрасный вид на лес со 2 этажа, хорошие соседи. Участок огорожен, 2 въездные группы, с электрическими откатными воротами. Подключены и построены следующие коммуникации: - магистральный газ, - отопление, - электричество 20 кВт, - собственная скважина на питьевую воду 38 м.п., - два септика, со сбросом в общую систему, - оптико-волоконное подключение интернета. Дом находится по адресу: Солнечногорский р-н, дер. Холмы, КП Тироль, 42 км от МКАД, по Ленинградскому шоссе или по М11; 50 км по Дмитровскому или Рогачёвскому шоссе. Коттеджный посёлок представляет собой закрытую, круглосуточно охраняемую территорию, примыкающую к большому лесному массиву. Территории общего использования благоустроены, освещены и обслуживаются своей УК, на выездах имеются площадки сбора ТБО, вывоз мусора по графику. Обустроены зоны отдыха, с прудом, беседками и большой спортивной площадкой, включая зону тренажеров. Хороший круглогодичный подъезд. В пешей доступности есть продовольственный магазин. Остановка общ. транспорта, авт.377 до ст. МЦД Зеленоград-Крюково. В 20 мин езды находится большой ТРЦ Зенопарк. Отличная локация для любителей зимних видов спорта, в 30- 40 минутах езды: расположены горнолыжные курорты Яхрома, Волен и Сарочаны. Очень удобно и быстро добираться до аэропорта Шереметьево, 20 мин езды на авто по М11, или 35 мин по Рогачёвскому шоссе. Дом в коттеджном поселке Тироль городского округа Солнечногорска.













































































