Предлагаем вашему вниманию дом 183,5 кв.м. и гостевой дом 101 кв.м. на участке 12 соток в СНТ Горетовка в 20 км от МКАД!
Территория участка благоустроена, все постройки выполнены в едином стиле, тротуарной плиткой вымощены дорожки, отмостка вокруг дома и площадка для отдыха или установки бассейна; сделана дренажная система. Имеются декоративные и плодовые деревья, кустарники, а также хвойные длинномеры (туи, ели) и лиственные деревья.
Автоматические откатные ворота DoorHan с шириной створа 9м, капитальный навес с дополнительным освещением. Возможность разместить до 3 машин.
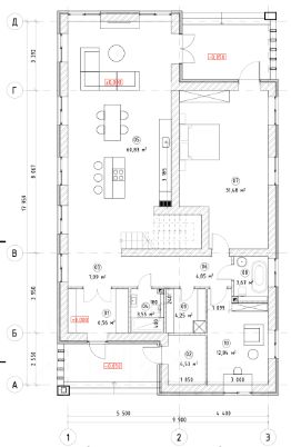
Основной дом двухэтажный, общая площадь 183,5 кв. м.. Дом построен по авторскому проекту из пеноблоков, облицован силикатным кирпичом. Крыша - гибкая черепица Katepal. На окнах 1 этажа кованые решетки, изготовленные по индивидуальному проекту.
Строился для себя. Полностью укомплектован мебелью и бытовой техникой.
Особенности планировки.
1 этаж: просторный холл 22 кв.м., гостиная с камином 33 кв.м., кухня 16 кв.м. с выходом на освещенную террасу 11 кв.м с летней кухней, оборудованной вытяжкой, мангалом и печью под казан, с дровником под столешницей; кабинет 15 кв.м., санузел с душевой кабиной, кладовка. Высота потолков 3,35м.
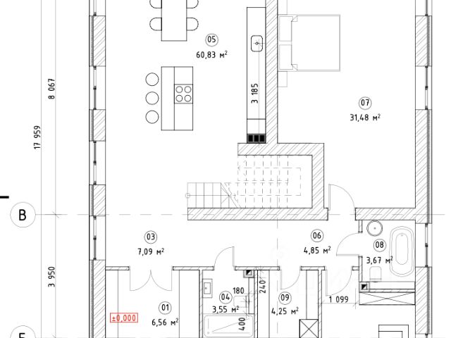
2 этаж: комната 18 кв.м., комната 12 кв.м., комната 9 кв.м., санузел с окном, гардеробная комната с окном. Высота потолков 2,95м. Эргономичная широкая деревянная лестница, пологая, подниматься легко.
Цокольный этаж: техническое помещение площадью 32 кв.м (размещены системы отопления, водоснабжения; осуществляется хранение инструментов, сезонной мебели и тд). Высота потолков 2 м.
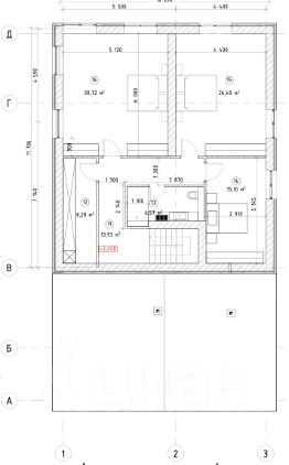
Гостевой дом - двухэтажный, общей площадью 101,2 кв.м. Построен из пеноблоков с облицовкой силикатным кирпичом. Крыша - гибкая черепица Katepal. Внутри отделан вагонкой.
1 этаж: комната отдыха 18 кв.м., баня с дровяной печью, душевая, туалет; гараж 25 кв.м с автоматическими воротами.
2 этаж: две изолированные комнаты 19 кв.м. и 17 кв.м., одна из которых оборудована кухонным гарнитуром.
Техническое оснащение дома и участка
Энергоснабжение. З-х фазный ток, лимит 30 кВт.
Отопление. В основном доме - электрический котел с энергосберегающей интеллектуальной системой управления и резервный котел Proterm. В гостевом доме - экономичный электродный котел Галан и также резервный котел Proterm. На случай перебоев с подачей электроэнергии установлена дизельная электростанция АД-300 Т400 мощностью 30 кВт (располагается в отдельном некапитальном строении).
Поданы документы на подключение газоснабжения по программе социальной газификации.
Водоснабжение. Два колодца на 10 и 13 колец.
Канализация. Биосептик корабельного типа, два дренажных колодца.
Дом оборудован пожарной и охранной сигнализацией, проведен беспроводной интернет.
На участке установлены садовые качели, беседка площадью 16 кв.м с мангалом, детская площадка, дровник; имеются вольеры для собак, курятник.
Взносы на общепоселковые нужды 17 тыс/в год.