Только на Циан
Проверено в Росреестре
Ленинградское шоссе
33 км от МКАД
Зеленоград — Крюково
17 минут на транспорте
Поварово I
10 минут на транспорте
24 990 000 ₽
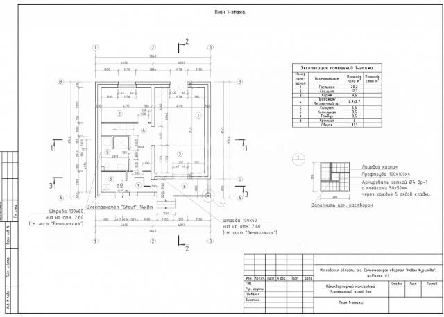
Продаётся дом 251,8 кв.м., для постоянного проживания на земельном участке 8 соток в д. Радумля. Солнечногорский район. Категория земли: земли населенных пунктов. Вид разрешенного использования: для индивидуального жилищного строительства. Ленинградское шоссе. 30 км от МКАД. Ж/д направление: Ленинградское. Описание дома: дом построен из газобетонные блока; фундамент свайно-ростверковый с монолитной плитой; внешняя отделка: кирпич; год постройки 2018; количество этажей 3; окна пластиковые; крыша металлочерепица. В доме выполнен качественный ремонт, готов для круглогодичного проживания. Коммуникации: электричество 15 кВт, водоснабжение скважина (35 метров), канализация: септик (10+2), отопление: электрическое. Газ по границе земельного участка. Описание дома: 1-й этаж прихожая, кухня столовая, большой зал, детская комната, санузел, котельная. С задней стороны дома есть терраса. 2-й этаж холл, детская комната, две гостевых спальни, хозяйская спальня с ванной комнатой, санузел. 3-й этаж планировался под домашний кинотеатр. При строительстве и отделки использовались качественные строительные и отделочные материалы. Дом продается полностью с техникой и мебелью. Территория участка огорожена забором по всему периметру, ворота с электроприводом. Деревня находится в непосредственной близости от Зеленограда, мимо проходят рейсовые Московские автобусы. Один взрослый собственник. Никто не прописан.










































































