Продаётся 1-комнатная квартира в сданном доме (Парковый, 5), срок сдачи: I-кв. 2021, общей площадью 36.4 кв.м., на 1 этаже.
НЕ ПОДХОДИТ ПОД СЕМЕЙНУЮ ИПОТЕКУ И ИПОТЕКУ БЕЗ ПЕРВОНАЧАЛЬНОГО ВЗНОСА!
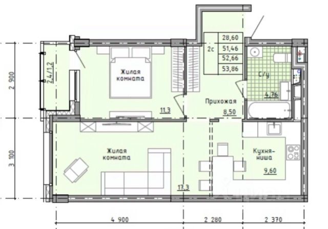
Продаётся квартира в ЖК "Зеленоградский"
Дом сдан. Квартира с готовым ремонтом "под ключ".
В квартире:
- выполнен ремонт с использование современных строительных материалов;
- на полу постелен ламинат;
- с/у и ванная в облицовке современной керамической плиткой;
- двери внутренние деревянные, наружные металлические;
- стены с покрытием декоративной штукатурки;
- индивидуальные приборы учета электроэнергии, воды;
- система противопожарной безопасности;
- остекленные балконы и лоджии;
- современные лифты фирмы Otis;
- консьерж;
- дом класса энергоэффективности А, А+, что существенно сэкономит на коммунальных платежах.
ЖК "Зеленоградский" расположен в одном из самых экологически чистых мест Подмосковья в 2-х км. от Зеленограда. На территории комплекса строится муниципальная школа, расположен муниципальный детский сад, работает частная школа и несколько детских садов.
Комплексное благоустройство территории ЖК: огороженная и комфортная территория, выход в паркинг из подъезда, по периметру ЖК просторные парковки, ТЦ, магазины, пекарни, кафе, салоны красоты, аптеки, игровые, спортивные и детские площадки, собственный пруд, зоны отдыха.
Расположение ЖК: ЖК "Зеленоградский" расположен в непосредственной близости от Пятницкого и Ленинградского шоссе и от него можно добраться до аэропорта Шереметьево. Железнодорожная станция "Крюково" в 10 минутах транспортом. Метро "Пятницкое шоссе" в 30 минутах.
______________________________________
В наличии квартиры на других этаж и с разной планировкой.
______________________________________
Застройщик предлагает большой выбор квартир, коммерческую недвижимость, машиноместа в автопаркинге.
В ОТДЕЛЕ ПРОДАЖ ЖК "Зеленоградского" Вы получите бесплатную квалифицированную консультацию специалистов по всем вопросам, связанным с недвижимостью.
Нашими партнерами являются все банки, работающие в регионе МО. Клиентам не нужно ходить по всем банкам, достаточно одной заявки и мы предоставим условия кредитования всех банков партнеров на выбор.
Вы можете приобрести квартиру с использованием материнского капитала, государственных субсидий и сертификатов на улучшение жилищных условий, по программе военная ипотека.
ОФОРМЛЕНИЕ СДЕЛОК С НЕДВИЖИМОСТЬЮ ЛЮБОЙ СЛОЖНОСТИ, ПОЛНОЕ ЮРИДИЧЕСКОЕ СОПРОВОЖДЕНИЕ.
Работаем для Вас ежедневно с 09.00 до 21.00 часов